LISTED BY:
Cecelia Carey
508.790.8900 Ext 102
Email
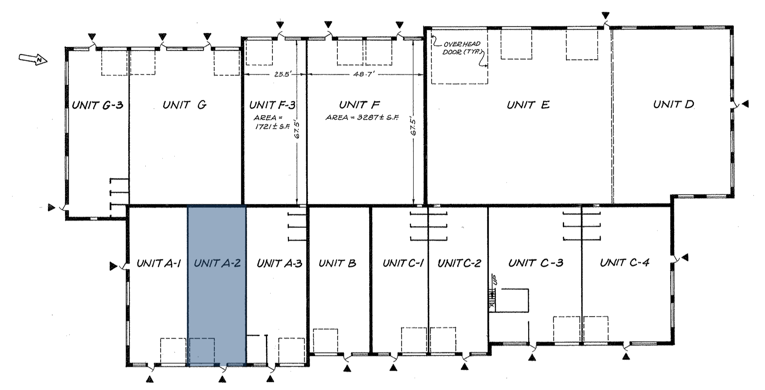
21 Fruean Avenue South Yarmouth, MA Unit A-2 aka Unit B
1,560 SF Industrial Warehouse For Sale
Unit Area: 1,560 SF
Ceiling Height: 20’
10’ X 10’ Loading Dock Door
2026 Condo Fee: $382/month
2026 RE Taxes: $2,616.40
For Sale: $335,000
The information provided herein is gathered from sources we deem reliable. We have no reason to doubt its accuracy but do not guarantee it. Interested parties should verify all information prior to involvement and should conduct a careful and independent investigation to your satisfaction the suitability of the property for your needs.
